Baan Icon D Plus Pool Villa Bang Saray, Modern Tropical style house designed to have privacy.
- ราคาขาย 7,900,000 ฿
Baan Icon D Plus Pool Villa Bang Saray, Modern Tropical style house designed to have privacy.
- ราคาขาย 7,900,000 ฿
Description
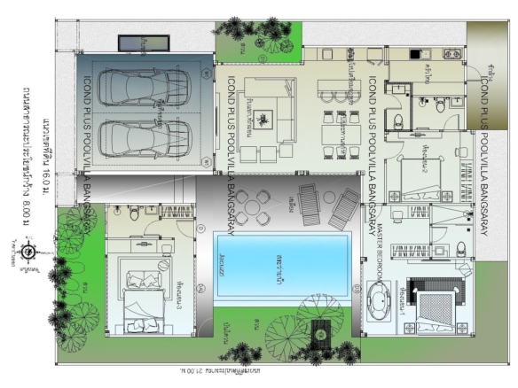
เกี่ยวกับรายการทรัพย์สินนี้: บ้าน ไอคอน ดี พลัส พูลวิลล่า บางเสร่ (Bann Icon D Plus Pool Villa Bangsaray) บ้านทรง Modern Tropical ออกแบบให้มีความเป็นส่วนตัวขนาด 84 ตารางวา 3 ห้องนอน 4 ห้องน้ำ พร้อมสระว่ายน้ำ ราคาเริ่มต้นที่ 7.9 ล้านบาท กับราคาบ้านพร้อมสระว่ายน้ำ เพิ่มความเป็นส่วนตัวให้โดยมีประตูโรงรถอัตโนมัติ (Garage Door) เพิ่มความปลอดภัยด้วยกล้องวงจรปิดชุด 6 ตัว เพิ่มความเป็นธรรมชาติ ด้วยพื้นที่สวนต้นไม้สไตล์ร้านกาแฟ เพิ่มพื้นที่ใช้สอย โดยมีดาดฟ้าไว้ชมวิว จัดปาร์ตี้วิวอ่างเก็บน้ำ ข้อมูลทรัพย์สิน : ที่ดินขนาด 84 ตรว. หรือ 336 ตรม. 3 ห้องนอน 4 ห้องน้ำ 2 ที่จอดรถ 1 ห้องนั่งเล่น 2 ห้องครัว 1 ห้องเก็บของ เคาน์เตอร์ครัวไทยและครัวยุโรปพร้อม อ่างล้างจาน เตาฮู้ด ปั๊มน้ำ ถังเก็บน้ำ 1000 ลิตร แอร์สี่ทิศทางบริเวณห้องนั่งเล่น ประตูโรงรถอัตโนมัติ สระว่ายน้ำ ระบบเกลือ มีม้านั่งพร้อมหัวนวดจากุดซี่ พื้นที่จัดสวนให้ อ่างอาบน้ำในห้องนอน กล้องวงจรปิด
Address
Open on Google Maps-
Address: Icon D Pool villa Bangsaray
-
City: บางเสร่, สัตหีบ, เมืองพัทยา
-
State/county: ชลบุรี
-
Zip/Postal Code: 20250
-
Area: บางเสร่, เมืองพัทยา, พัทยา
-
Country: ประเทศไทย
Details
Updated on November 22, 2023 at 10:29 am-
Property ID HS00401
-
Price ราคาขาย 7,900,000 ฿
-
Property Size 168 Sq.m.
-
Land Area 84 Sq.w.
-
Bedrooms 3
-
Bathrooms 4
-
Property Type บ้านเดี่ยว
-
Property Status สำหรับขาย
-
province Chonburi
Schedule a Tour
Your information
Contact Information
View Listings- Suksiri Estate Pattaya
- 0926146987WhatsApp

